
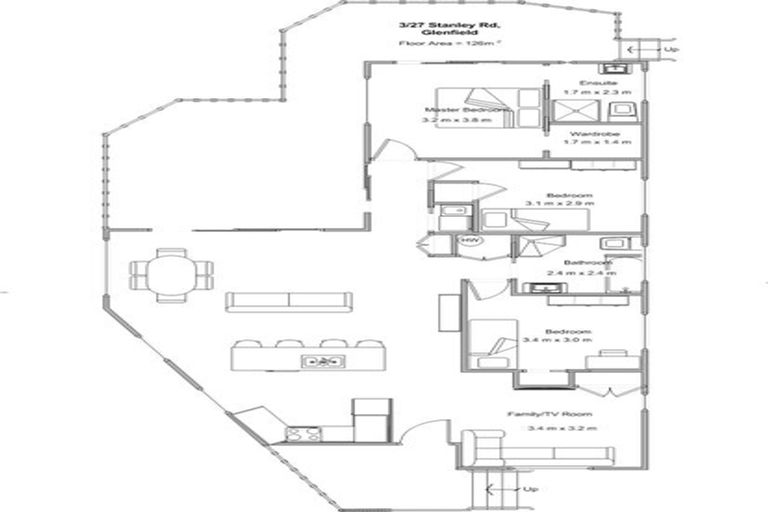
3/27 Stanley Road, Glenfield, Auckland, 0629 is a Residential property built in 1990 with 3 bedrooms, 2 bathrooms and 2 parking spaces. The property is estimated to be valued in the range of $900,000 to $1,000,000.
The property last sold on 15 November 2015 for $826,000. On 1 June 2021, 3/27 Stanley Road, Glenfield, Auckland, 0629 had a Rating Valuation with a Capital Value of $1,025,000, Land Value of $650,000 and Improvement Value of $375,000.
| Date | Type | Price | Agent/Agency |
|---|---|---|---|
| 3 Dec 2024 | Rented | $735 | |
| 15 Nov 2015 | SOLD | $826,000 | |
| 18 Jun 2003 | SOLD | $235,000 |
Area 3 Deposited Plan 495069
There are no similar properties in the area that are listed for sale or recently sold.