
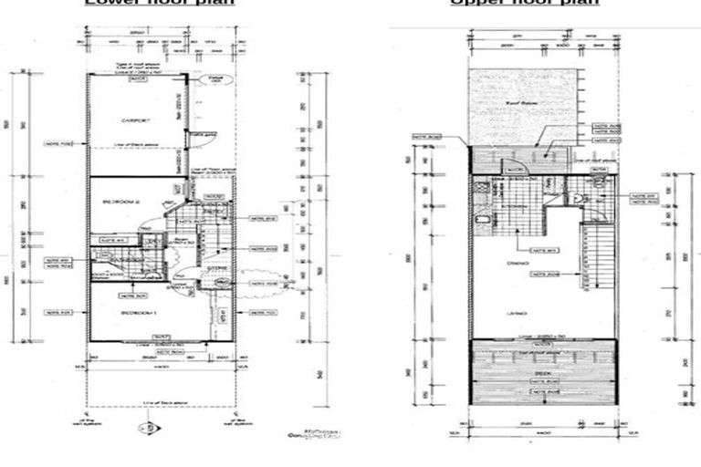
20/206 Manuka Road, Bayview, Auckland, 0629 is a Residential property built in 2004 with 2 bedrooms, 1 bathroom and 2 parking spaces. The property is estimated to be valued in the range of $600,000 to $650,000.
It is unknown when the property was last sold or how much it was sold for. On 1 May 2024, 20/206 Manuka Road, Bayview, Auckland, 0629 had a Rating Valuation with a Capital Value of $640,000, Land Value of $470,000 and Improvement Value of $170,000.
| Date | Type | Price | Agent/Agency |
|---|---|---|---|
| 22 Sep 2025 | Rented | $580 |
Unit 20 and Accessory Unit 51 Deposited Plan 316943
There are no similar properties in the area that are listed for sale or recently sold.