
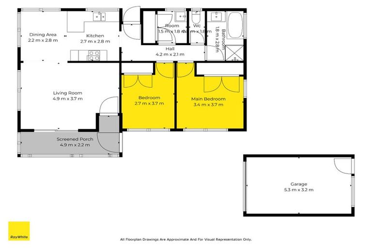
38b Browns Road, Manurewa, Auckland, 2102 is a Residential property built in 1975 with 2 bedrooms, 1 bathroom and 1 parking space. The property is estimated to be valued in the range of $600,000 to $650,000.
The property last sold on 19 February 2025 for $511,260. It was sold by Hills Real Estate Limited, (Licensed: Reaa 2008). On 1 June 2021, 38b Browns Road, Manurewa, Auckland, 2102 had a Rating Valuation with a Capital Value of $640,000, Land Value of $460,000 and Improvement Value of $180,000.
| Date | Type | Price | Agent/Agency |
|---|---|---|---|
| 19 Feb 2025 | SOLD | $511,260 | Rickhil Prakash of Hills Real Estate Limited, (Licensed: Reaa 2008) |
| 3 Feb 2025 | SOLD | $590,000 | Rickhil Prakash of Hills Real Estate Limited, (Licensed: Reaa 2008) |
| 22 Nov 2024 | BY NEGOTIATION | Price Not Disclosed | Rickhil Prakash of Hills Real Estate Limited, (Licensed: Reaa 2008) |
| 22 Nov 2024 | BY NEGOTIATION | Price Not Disclosed | Rickhil Prakash of Hills Real Estate Limited, (Licensed: Reaa 2008) |
| 24 Mar 2016 | SOLD | $448,000 | |
| 8 Sep 2011 | SOLD | $222,000 | Phil Lynch of Harcourts Blue Chip Manurewa |
| 10 May 2011 | DEADLINE PRIVATE TREATY | $250,000 | Phil Lynch of Harcourts Blue Chip Manurewa |
| 5 May 1999 | SOLD | $162,500 | |
| 1 Dec 1994 | SOLD | $94,500 | |
| 15 Jan 1991 | SOLD | $85,000 | |
| 12 Feb 1983 | SOLD | $44,000 | |
| 1 Jan 1930 | SOLD | $0 |
Lot 1 Deposited Plan 71329
There are no similar properties in the area that are listed for sale or recently sold.