
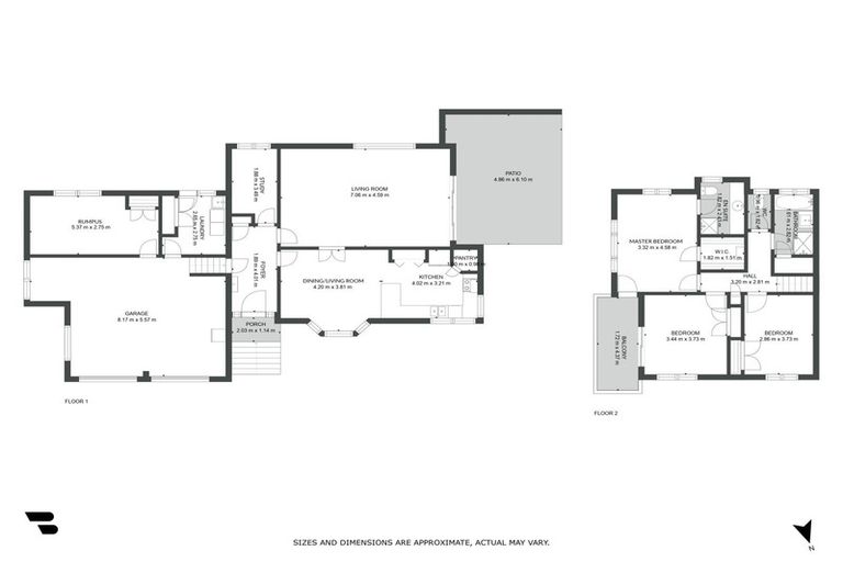
2/3 Frances Street, Manurewa, Auckland, 2102 is a Residential property built in 1983 with 4 bedrooms, 2 bathrooms and 1 parking space. The property is estimated to be valued in the range of $900,000 to $1,000,000.
The property last sold on 1 July 2024 for $935,555. On 1 June 2021, 2/3 Frances Street, Manurewa, Auckland, 2102 had a Rating Valuation with a Capital Value of $1,100,000, Land Value of $560,000 and Improvement Value of $540,000.
| Date | Type | Price | Agent/Agency |
|---|---|---|---|
| 1 Jul 2024 | SOLD | $935,555 | |
| 16 Nov 2022 | SOLD | $955,555 | Dianne Burt of Bayleys One Tree Hill |
| 26 Oct 2022 | BY NEGOTIATION | Price Not Disclosed | Dianne Burt of Bayleys One Tree Hill |
| 23 Mar 1985 | SOLD | $110,000 | |
| 24 Oct 1984 | SOLD | $105,000 |
Flat 2 Deposited Plan 99247
There are no similar properties in the area that are listed for sale or recently sold.