
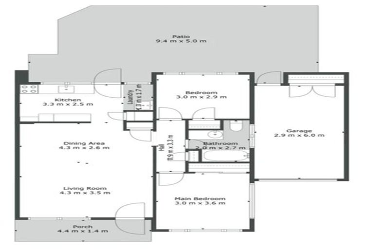
5a Mckenzie Road, Mangere Bridge, Auckland, 2022 is a Residential property built in 1975 with 2 bedrooms, 1 bathroom and 1 parking space. The property is estimated to be valued in the range of $650,000 to $700,000.
The property last sold on 26 September 2022 for $690,000. It was sold by Bayleys Real Estate - St Heliers, and took 28 days to sell. On 1 June 2021, 5a Mckenzie Road, Mangere Bridge, Auckland, 2022 had a Rating Valuation with a Capital Value of $740,000, Land Value of $385,000 and Improvement Value of $355,000.
| Date | Type | Price | Agent/Agency |
|---|---|---|---|
| 5 Feb 2025 | Rented | $650 | |
| 15 Aug 2024 | AUCTION | Price Not Disclosed | Kim Hampson of Bayleys St Heliers |
| 26 Sep 2022 | SOLD | $690,000 | Kim Hampson of Bayleys Real Estate - St Heliers |
| 30 Aug 2022 | BY NEGOTIATION | Price Not Disclosed | Kim Hampson of Bayleys Real Estate - St Heliers |
| 22 Oct 2014 | SOLD | $370,000 | |
| 3 May 2011 | SOLD | $255,500 | |
| 19 Jun 1997 | SOLD | $132,000 | |
| 21 Sep 1995 | SOLD | $95,000 |
Unit A and Accessory Unit 4 Deposited Plan 78038
There are no similar properties in the area that are listed for sale or recently sold.