
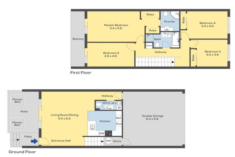
3/44 Carlos Drive, Flat Bush, Auckland, 2016 is a Residential property built in 2007 with 3 bedrooms, 2 bathrooms and 2 parking spaces. The property is estimated to be valued in the range of $750,000 to $800,000.
The property last sold on 22 September 2020 for $727,000. It was sold by Barfoot & Thompson. On 1 June 2021, 3/44 Carlos Drive, Flat Bush, Auckland, 2016 had a Rating Valuation with a Capital Value of $830,000, Land Value of $380,000 and Improvement Value of $450,000.
| Date | Type | Price | Agent/Agency |
|---|---|---|---|
| 1 Oct 2020 | Rented | $750 | |
| 22 Sep 2020 | SOLD | $727,000 | |
| 16 Mar 2020 | UNKNOWN | Price Not Disclosed | Danny Lim of Barfoot & Thompson Dannemora |
| 18 Sep 2013 | SOLD | $485,000 | Janice Hamilton - Cox of Barfoot & Thompson Mreinz Remuera |
| 29 Aug 2013 | AUCTION | Price Not Disclosed | Janice Hamilton - Cox of Barfoot & Thompson Mreinz Remuera |
| 27 Feb 2007 | SOLD | $530,000 | |
| 22 Nov 2006 | SOLD | $475,000 |
Unit 22 Deposited Plan 378353
There are no similar properties in the area that are listed for sale or recently sold.