
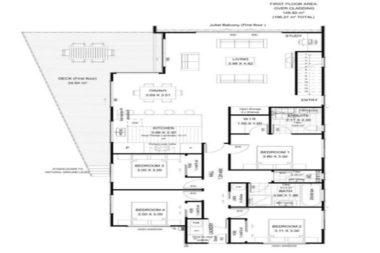
5 Paddock Lane, Pukekohe, 2120 is a Residential property built in 2020 with 4 bedrooms, 2 bathrooms and 0 parking spaces. The property is estimated to be valued in the range of $1,000,000 to $1,100,000.
It is unknown when the property was last sold or how much it was sold for. On 1 June 2021, 5 Paddock Lane, Pukekohe, 2120 had a Rating Valuation with a Capital Value of $1,150,000, Land Value of $410,000 and Improvement Value of $740,000.
| Date | Type | Price | Agent/Agency |
|---|---|---|---|
| 21 Jan 2021 | SOLD | $1,019,000 | |
| 17 Dec 2020 | ASKING PRICE | Price Not Disclosed |
Lot 13 Deposited Plan 536529
There are no similar properties in the area that are listed for sale or recently sold.