
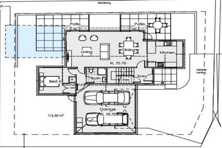
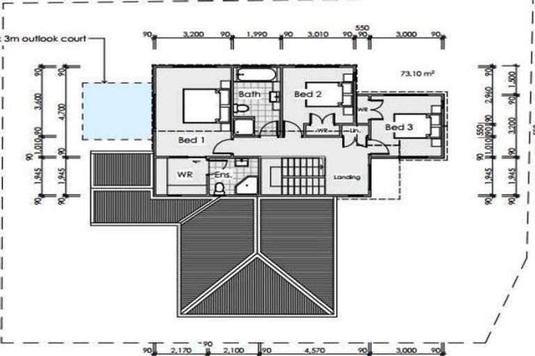
140a Lisle Farm Drive, Pukekohe, 2120 is a Residential property built in 2020 with 3 bedrooms, 3 bathrooms and 0 parking spaces. The property is estimated to be valued in the range of $1,000,000 to $1,100,000.
It is unknown when the property was last sold or how much it was sold for. On 1 June 2021, 140a Lisle Farm Drive, Pukekohe, 2120 had a Rating Valuation with a Capital Value of $1,150,000, Land Value of $400,000 and Improvement Value of $750,000.
| Date | Type | Price | Agent/Agency |
|---|---|---|---|
| 10 Jun 2021 | Rented | $700 | Ray White 360 Property Management of 360 Property Management Ltd |
Lot 100 Deposited Plan 537279
There are no similar properties in the area that are listed for sale or recently sold.